STAN

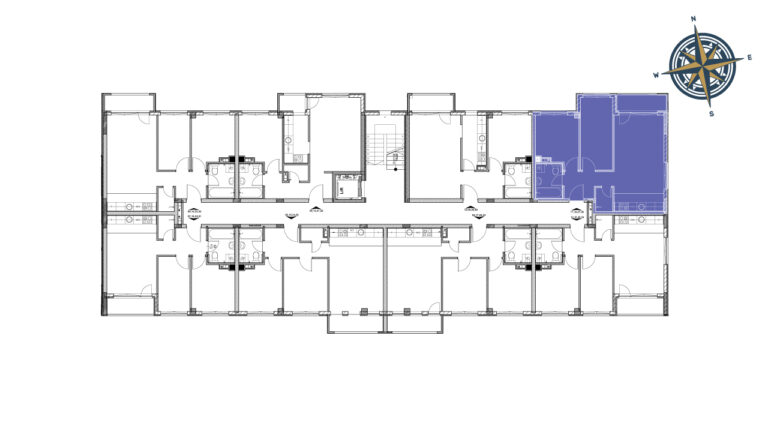
B-27

Trosoban - 56.29 m2

OBJEKAT P+4 Lamela B - III SPRAT

Prostorni prikaz

Osnova stana

Prostorije

Rb.ProstorijaPodP. red 3%
1.Hodnikkeramičke pločice5,02m2
2.Dnevni boravakparket17,63m2
3.Kuhinjakeramičke pločice4,06m2
4.Kupatilokeramičke pločice4,33m2
5.Spavaća soba 01parket9,38m2
6.Spavaća soba 02parket10,56m2
7.Ostavakeramičke pločice1,81m2
8.Terasakeramičke pločice3,50m2
Ukupno56,29m2

Orijentacija stana

Dokumentacija

PREUZMI PLAN
Copyright © 2020 Plattner
|
Website Terms & Conditions
linkedin facebook pinterest youtube rss twitter instagram facebook-blank rss-blank linkedin-blank pinterest youtube twitter instagram