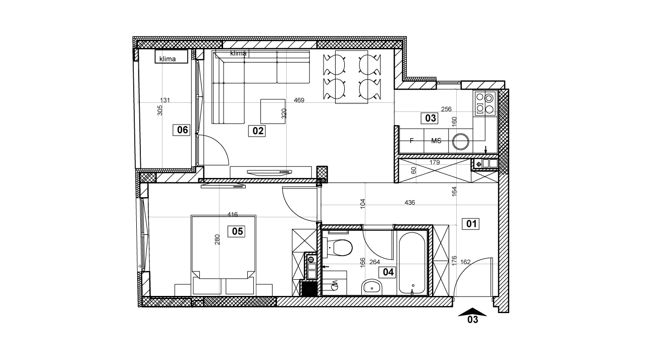
STAN

A-03

Dvosoban - 45.67 m2

OBJEKAT P+4 Lamela A - PRIZEMLJE

Prostorni prikaz

Osnova stana

Prostorije

Rb.ProstorijaPodP. red 3%
1.Hodnikkeramičke pločice8,39m2
2.Dnevni boravakparket14,63m2
3.Kuhinjakeramičke pločice3,90m2
4.Kupatilokeramičke pločice4,25m2
5.Spavaća sobaparket10,84m2
6.Terasakeramičke pločice3,66m2
Ukupno45,67m2

Orijentacija stana

Dokumentacija

PREUZMI PLAN
Copyright © 2020 Plattner
|
Website Terms & Conditions
linkedin facebook pinterest youtube rss twitter instagram facebook-blank rss-blank linkedin-blank pinterest youtube twitter instagram